立即預約 立即預約
免費定制整裝家居

免費定制整裝家居

一站置家 全程無憂 一省到底
hide.png

當前位置: 首頁 > 裝修案例效果圖 > 伯爵源筑|法式風格

伯爵源筑|法式風格 120平 其他風格效果圖

收藏
案例風格 其他 案例戶型 二居 案例面積 120平米
樓盤名稱 伯爵源筑 設計師 全案整裝 案例類型 改善性住宅

設計理念:設計說明:人的一生,絕大部分時間是在室內度過的,因此,人們設計創(chuàng)造的室內環(huán)境要更加考慮一些舒適性

客廳
第1張
第2張
餐廳
第1張
臥室
第1張
第2張
休閑區(qū)
第1張
第2張
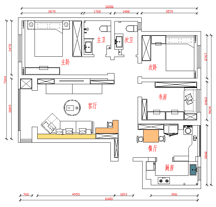
戶型圖
第1張
伯爵源筑-法式復古-客廳2.png 伯爵源筑-法式復古-客廳.png

客廳說明:瓷磚通鋪 使人眼前一亮 給出一種干凈大氣的感覺

伯爵源筑-法式復古-餐廳.png

餐廳說明:棚面的調整,客餐廳融為一體,配合客廳整體風格

伯爵源筑-法式復古-次臥.png 伯爵源筑-法式復古-主臥.png

臥室設計說明:臥室軟裝部分配的更多一些,主要做的就是以溫馨,讓睡眠舒適性更強一些。

伯爵源筑-法式復古-餐廳及陽臺洗衣機間.png 伯爵源筑-法式復古-客廳陽臺.png 8b76128263bf3906fe8a1fc6f06ea8e.png

案例設計師

全案整裝

設計師:全案整裝

從業(yè)時間:6年

設計理念:空間是生活的一部分,但我們設計一個空間時要考慮的是生活的全部。

預約設計師

算算你家裝修多少錢

報名即享豐厚贈品,享半價裝修

免費報價
咨詢熱線:400-656-9909
20190221103704574636.jpg

精品設計案例

20180612134930523248.jpg 服務號二維碼.jpg